Dibujo normalizado

Description

Mapa mental que contiene información especifica del dibujo normalizado.
Christian Cuenca
Mind Map by Christian Cuenca, updated more than 1 year ago
Christian Cuenca
Created by Christian Cuenca over 10 years ago
259
0

Resource summary

Dibujo normalizado
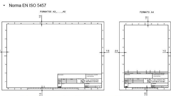
  1. Formatos
    1. Se dejan 20 mm del lado izquierdo para el encuadernado
      1. A0, A1, A2, A3, A4
        1. Vertical y horizontal
          1. Marcas en la imagen
            1. Sistema de archivo
            2. Medio para dibujo
              1. Diazo
                1. Se realiza el dibujo en papel transparente
                2. Impresiones (copias)
                  1. Dibujo a mano
                  2. Curvas irregulares
                    1. Flexibles
                      1. Plantillas elípticas
                        1. Mano libre
                        2. Tamaño del plano
                          1. Pulgadas
                            1. Métrico
                            2. Bosquejo
                              1. Expresar ideas
                                1. Partes mecánicas y mecanismos
                                2. Papel para bosquejos
                                  1. Tridimensional e isométrico
                                Show full summary Hide full summary

                                Similar

                                Geometría molecular
                                Christian Cuenca
                                UNIDAD 1: DIBUJO NORMALIZADO
                                yasmin adriana orjuela sanchez
                                Unidad 1 - Dibujo Normalizado
                                Alix Aguirre
                                DIBUJO NORMALIZADO-ICONTEC
                                Ammeris Daza
                                Mapa Mental Entorno de Aprendizaje Práctico
                                Daniel Mauricio Vásquez Patiño
                                Unidad : Dibujo normalizado
                                Carolina Fernández
                                DIBUJO DE INGENIERÍA UNIDAD 1
                                Karen Daritza Collazos Gamboa
                                DIBUJO NORMALIZADO
                                luis quintero
                                Unidad 2 DIBUJO PROYECTIVO
                                Jhon Freddy Ortiz Gallego
                                DIBUJO DE INGENIERIA
                                senaida Quiroz
                                UNID. 1 DIBUJO NORMALIZADO
                                camilo andres co