EL TROQUELADO O ESTAMPADO

Description

corte, doblado y embutido
Nata Mei
Mind Map by Nata Mei, updated more than 1 year ago
Nata Mei
Created by Nata Mei over 10 years ago
33
0

Resource summary

EL TROQUELADO O ESTAMPADO

Annotations:

  • operaciones  sin producir viruta, somete  una  lámina plana a ciertas transformaciones  para  obtener una pieza de forma geométrica propia 
  1. procesos
    1. Corte o Punzonado (se realiza generalmente en frío)
      1. b) Doblado y/o Curvado (se realiza generalmente en frío)
        1. c) Embutido (puede realizarse en frío o en caliente)
        2. ciclo de troquelado
          1. 1. Definir la forma de la pieza, que impone cierto número de operaciones, de acuerdo con su complejidad
            1. 2. Determinar las dimensiones
              1. 3. Conocer el material del que se hará la pieza, su plasticidad y elasticidad
                1. 4. La posibilidad de extraer fácilmente la pieza de la matriz.
                2. operación
                  1. CORTE O PUNZONADO

                    Annotations:

                    • operación de troquelado   con herramientas aptas para el corte se separa una parte metálica de otra
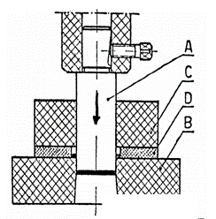
                    1. diagrama simple

                      Annotations:

                      • A) Punzón - que con su sección define el contorno a cortar B) Matríz C) Guía - para la carrera del punzón D) Guía - para la cinta de lámina a trabajar. 
                      1. DISPOSICIÓN
                        1. correcta

                          Annotations:

                          • tiene un menor desperdicio de materia prima
                          1. incorrecta

                            Annotations:

                            • desperdicia demasiado material
                          2. valores mínimos

                            Annotations:

                            •  material que debe quedar alrededor del recorte en láminas de acero (mm)
                            1. FUERZA NECESARIA PARA EL CORTE

                              Annotations:

                              • p - Perímetro de la figura ( mm ) s - Espesor de la lámina ( mm ) Q - Fuerza de corte ( N )   (sigma)R- Esfuerzo de rotura del material por tensión (N / mm2)  (sigma)T- Esfuerzo de rotura del material por corte (N / mm2) 
                          3. plantillas
                            1. normas

                              Annotations:

                              • operar de modo que se desprecie la menor cantidad posible de material. 
                              1. Es indispensable que el sentido de las fibras en el material trazado sea el correcto, para favorecer la elaboración del mismo sin disminuir la resistencia.
                                1. bien
                                  1. favorece la operación de corte del material
                                  2. mal
                                    1. hace dificultoso el corte de las piezas.
                              2. PUNZÓN Y MATRIZ
                                1. perfiles exactos y limpios
                                  1. -Para el corte de perfiles exteriores, la medida de la matriz , será la medida de la pieza
                                    1. Para el corte de perfiles interiores, la medida del punzón, será la medida del agujero
                                  2. Ángulos de escape en la matríz

                                    Annotations:

                                    • El ángulo de escape depende fundamentalmente del material, espesor a cortar y del número de cortes
                                    1. 1. El ángulo que comienza en la arista de corte se usa para metales blandos, como son: plomo,cobre, aluminio, latón y bronce. Este tipo de ángulo no es recomendable debido a la imposibilidad de afilar la matriz
                                      1. 2. El ángulo que comienza despues de una parte recta igual a 2 o 3 veces el espesor de la placa que se quiere cortar, se utiliza para metales duros como el hierro y el acero; los perfiles obtenidos con este ángulo son exactos.
                                        1. A partir de la arista de corte de la matriz y hasta una profundidad de 2 o 3 veces el espesor del material a cortar existe una ligera conicidad, desde lo profundo la conicidad aumenta.

                                          Annotations:

                                          • Este ángulo es aplicable para corte de metales muy duros, cuyas piezas no requieren contornos precisos. 
                                        2. DOBLADO Y/O CURVADO
                                          1. tener en cuenta
                                            1. 1. El radio de curvatura

                                              Annotations:

                                              • Se recomienda que el radio de curvatura interior sea mayor o igual que el espesor de la lámina con el fin de no estirar excesivamente la fibra exterior causando su ruptura.
                                              1. 2. Elasticidad del material

                                                Annotations:

                                                •  la pieza tiende a recuperar su forma natural
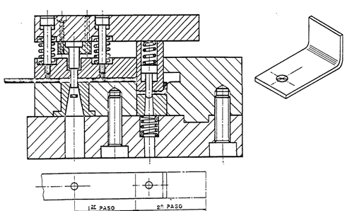
                                            2. TROQUEL PARA PUNZONAR, CORTAR Y DOBLAR
                                              1. VARIOS TIPOS DE TROQUELES DE DOBLAR
                                                1. DOBLADO Y/O CURVADO VARIANTES
                                                  1. EMBUTIDO
                                                    1. transformar una lámina de metal en un cuerpo hueco tridimensional en una o mas pasadas
                                                      1. TROQUEL DE DOBLE ACCIÓN
                                                      Show full summary Hide full summary

                                                      Similar

                                                      Organigrama Maquiladora Textil
                                                      Eber Ruiz
                                                      how to get away with murder
                                                      Aldo Daniel Venegas Bernal
                                                      Herramientas Manuales
                                                      Brian Campos
                                                      DOBLADO Y PLEGADO 1
                                                      b0ob.x4ndrh4
                                                      ¿Qué es la SCJN?
                                                      Michelle Bernal 1856
                                                      Estudio de corte transversal
                                                      Katherine Sofía Anaya
                                                      FASE 2 DIBUJO PROYECTIVO
                                                      Andres Tapasco
                                                      CLASIFICACION DE HERRAMIENTAS
                                                      Brian Campos
                                                      Troquelado
                                                      Rafael Miranda
                                                      Internet de las cosas
                                                      Viridiana Caball