William_Gonzalez_Dibujo_de_Ingenieria_212060_20_Momento_Inicial

Description

Momento Inicial
William Arturo Gonzalez
Mind Map by William Arturo Gonzalez, updated more than 1 year ago
William Arturo Gonzalez
Created by William Arturo Gonzalez over 9 years ago
20
0

Resource summary

William_Gonzalez_Dibujo_de_Ingenieria_212060_20_Momento_Inicial
  1. HISTORIA DEL DIBUJO
    1. Representación gráfica que hace posible una comunicacion
      1. El dibujo se encarga de representar en un plano las figuras del espacio, es decir, pasar de las tres dimensiones del espacio a las dos del plano
      2. Edad Antigua
        1. La verdadera patria de la geometría será Grecia, pues fue allí donde se cultivó con empeño, donde se hicieron los grandes descubrimientos y donde los resultados obtenidos fueron coordinados y formaron una verdadera doctrina, estableciendo las bases de las proporciones, primera regla del diseño.
        2. Edad Media
          1. Es caracterizada por produciéndose en los Monasterios los únicos avances. Una de las características de esta época fue el secreto profesional en los gremios correspondientes, de forma que una vez se habían utilizado los dibujos, estos dueran destruidos
          2. Renacimiento
            1. Merece la pena destacar a René Descartes (1596-1650) que introdujo el concepto de la geometría coordenada (coordenadas cartesianas) [3], exponiendo los números algebraicos para resolver problemas de geometría, así como a Gérard Desargues (1593-1662) creador de la geometría proyectiva.
            2. Edad Moderna
              1. Se produce el desarrollo real de los sistemas de representación más utilizados en ingeniería, el sistema diédrico o de Monge, el sistema de planos acotados o sistema acotado y el sistema axonométrico.
            3. NORMAS
              1. Estandarizadas por la Organizacion Internacional de Normalizacion (ISO) y ISO TCIO
              2. RAMAS DE APLICACION
                1. Mecánica (Generación Energía, Transporte, Fabricación, Entre otros)
                  1. Arquitectura
                    1. Electricidad (Iluminación, Establecimiento de comunicación, Entre Otros)
                      1. Aeronáutica (Aerodinámica, Diseño Estructural)
                        1. Diseño de Tubería (Transporte de Fluidos)
                          1. Estructural (Planos, Barcos, Puentes)
                            1. Diagramas Tecnícos (Nuevos Productos, Proyectos)
                            2. MEDIOS PARA DIBUJAR
                              1. Se refiere al material en que esta impreso el dibujo original
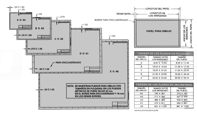
                              2. TAMAÑOS
                                1. Pulgadas
                                  1. Milimetros
                                  2. Sistema de división en zonas
                                    1. Su identificación inicia en la esquina inferior derecha con una numeración de forma horizontal y alfabetica vertical, demanera que se pueda identificar cualquier area dentro del dibujo.
                                      1. La margen puede tener marcas para facilitar el doblado y una escala grafica para facilitar la reproduccion a un tamaño dado
                                        1. Formato del Titulo
                                          1. Lista de materiales
                                            1. Distribución Caracteristica
                                            2. Bosquejos
                                              1. Construir una marco: Delimita el espacio del bosquejo, puede utilizar lineas finas
                                                1. Encuadrar los espacios para detallar: Estos subcuadros encierran cada detalle
                                                  1. Agregar los detalles y Engrosar las lineas
                                              2. Dibujos Panoramicos
                                                1. Proyección Axionometrica
                                                  1. Proyección Oblicua
                                                    1. Proyección de Perspectiva
                                                    Show full summary Hide full summary

                                                    Similar

                                                    principales tópicos del OVI Teoría de descripción de la forma, capítulo 6 libro Jensen (Dibujo y diseño en ingeniería) y OVA Reconocimiento de vistas.
                                                    yenny paola mondragon
                                                    Unidad 1 y Libro de Jensen Dibujo de Ingeniería
                                                    CARMIÑA CHICO
                                                    MAPA MENTAL DIBUJO DE INGENIERIA
                                                    mechas.24
                                                    DIBUJO DE INGENIERIA UNIDAD #1 DIBUJO NORMALIZADO PARTE 2
                                                    Miguel Angel Pulgarin Giron
                                                    UNIDAD 1: DIBUJO NORMALIZADO
                                                    yasmin adriana orjuela sanchez
                                                    UNIDAD 1 DIBUJO NORMALIZADO
                                                    camiloramirez.24
                                                    Ancho, Alto y Largo: Conceptos en dibujos 2D
                                                    Brayan Stiven Rincon Sanchez
                                                    Concepto y Modelo de Dibujo CAD CATIA
                                                    victor Alfonso Quintero Quintero
                                                    Conceptos del libro de Jensen, normasIcontec y temáticas de artículos
                                                    Cristian Eduardo Chaparro Galindo
                                                    Unidad 2: Dibujo proyectivo
                                                    El Javier
                                                    unidad 2 dibujo de ingenieria
                                                    edisson suarez suarez